
LA CASA DE ROCAFORT AC56
This project in Rocafort is based on a very clear premise: to create a warm, bright home that is connected to its surroundings. The intervention combines interior design, turnkey project and a total optimisation of spaces, always maintaining a serene and natural aesthetic.
The kitchen is resolved with pure lines, bespoke furniture and a wooden front that adds texture and balance. The integrated linear lighting reinforces a soft and welcoming atmosphere without losing functionality. Opposite it, a set of panelled wardrobes organises the living area and conceals storage, installations and auxiliary spaces, maintaining an impeccable visual order.
The living-dining room opens completely to the garden thanks to a large glazed façade. This interior-exterior connection transforms the experience of the dwelling: more light, more space and a continuous relationship with the vegetation and the pool. The colour palette —sand tones, natural woods and light fabrics— unifies all environments and provides a constant sense of well-being.
On the exterior, we enlarge the openings and renew the envelope to achieve a more contemporary and homogeneous image. The result is a dwelling that is more open, functional and adapted to modern life, but without losing the original character of the construction.
COMPLETED PROJECT
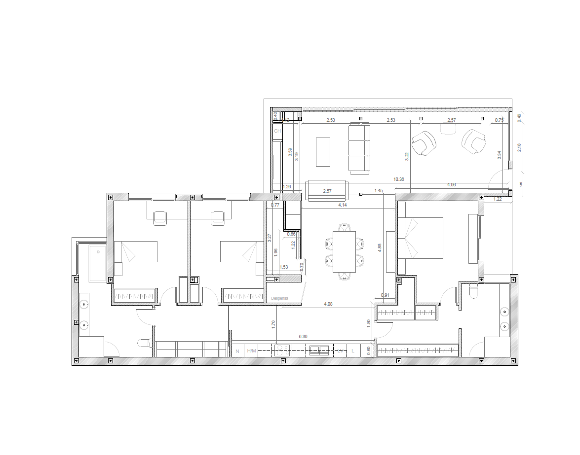
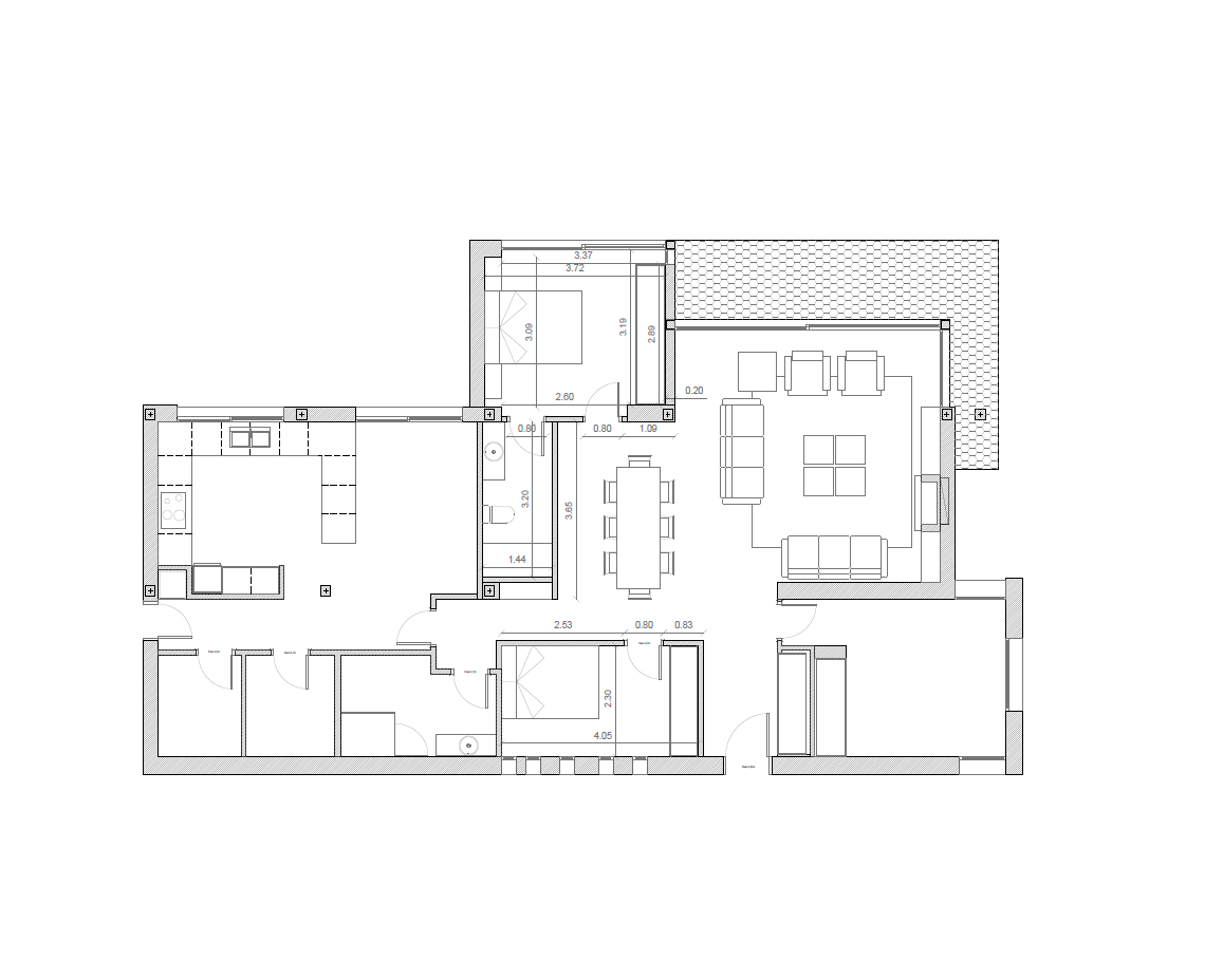
GRAPHIC DOCUMENTATION AND PLANIMETRY
PROJECT BEFORE AND DURING THE CONSTRUCTION PROCESS
Do you want such a space?
Responsible: BTTESTUDIO ARQUITECTURA
Purpose: To respond to your request for information or question. Send you commercial information about our products if you authorize it.
Legitimation: consent of the interested party.
Recipients: No data will be transferred to third parties, unless legally obliged to do so.
Rights: You have the right to access, rectify and delete data, as well as other rights, as explained in the Privacy Policy.








































