
LA CASA DE ROCAFORT AC56
Este proyecto en Rocafort parte de una premisa muy clara: crear en un hogar cálido, luminoso y conectado con el entorno. La intervención combina diseño interior, obra completa y una optimización total de los espacios, manteniendo siempre una estética serena y natural.
La cocina se resuelve con líneas puras, mobiliario a medida y un frente de madera que aporta textura y equilibrio. La iluminación lineal integrada refuerza una atmósfera suave y acogedora sin perder funcionalidad. Frente a ella, un conjunto de armarios panelados organiza la zona de día y oculta almacenaje, instalaciones y espacios auxiliares, manteniendo un orden visual impecable.
El salón–comedor se abre completamente al jardín gracias a una gran fachada acristalada. Esta conexión interior–exterior transforma la experiencia de la vivienda: más luz, más espacio y una relación continua con la vegetación y la piscina. La paleta cromática —tonos arena, maderas naturales y tejidos ligeros— unifica todos los ambientes y aporta una sensación constante de bienestar.
En el exterior, ampliamos los huecos y renovamos la envolvente para conseguir una imagen más contemporánea y homogénea. El resultado es una vivienda más abierta, funcional y adaptada a la vida actual, pero sin perder el carácter original de la construcción.
PROYECTO TERMINADO
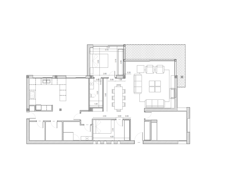
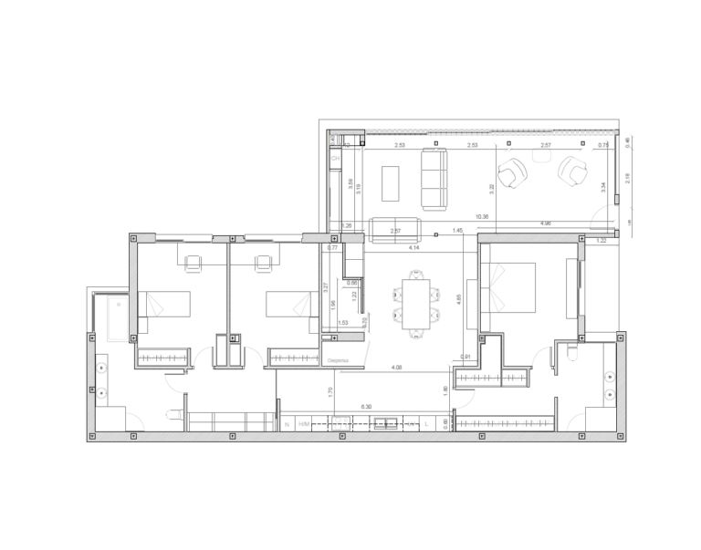
DOCUMENTACIÓN GRÁFICA Y PLANIMETRÍA
PROYECTO ANTES Y PROCESO DE EJCUCIÓN DE OBRA
¿Quieres un espacio así?
Responsable: BTTESTUDIO ARQUITECTURA
Finalidad: responder a su solicitud de información o pregunta. Enviarle información comercial sobre nuestros productos si lo autoriza.
Legitimación: consentimiento del interesado.
Destinatarios: No se cederán datos a terceros, salvo obligación legal.
Derechos: tiene derecho a acceder, rectificar y suprimir los datos, así como otros derechos, como se explica en la Política de Privacidad.








































