
Restaurante Hermanos Barberá
BTTEstudio Arquitectura carried out the extension and full refurbishment of this restaurant located on Avenida de los Naranjos, transforming an existing space of 200 m² and adding a new area to reach a total of 350 m². The aim was to unify both parts under a single aesthetic and functional identity, creating a coherent, contemporary space with greater operational capacity.
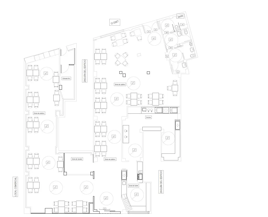
The intervention focused on connecting the two previously independent premises through a completely new redistribution, reinforcing the relationship between dining areas, the bar, access points, and workspaces. A fluid route was designed to enhance the circulation of customers and staff, optimising both the experience and efficiency.
The full refurbishment allowed for the implementation of a warm and recognisable aesthetic based on:
- Continuous cladding and natural materials.
- Indirect lighting that enhances the atmosphere of the restaurant.
- Bespoke furniture, developed specifically to maximise comfort and durability.
- Integrated decorative elements that reinforce the personality of the space, maintaining absolute coherence between both areas of the newly extended premises.
Every detail was designed to create a welcoming, versatile environment suitable for both informal meals and more intimate dinners.
In addition to the public area, the service and back-office zones were completely renovated:
- New kitchen and storage layout.
- Updated installations adapted to the needs of the business.
- Improvements in access and internal flows to reduce working times and increase efficiency.
The result is a unified, modern, and coherent space that multiplies its capacity and enhances its internal operations without sacrificing the restaurant’s personality. A project conceived to grow alongside the business, strengthen its presence on the avenue, and offer a superior experience to its customers.
COMPLETED PROJECT
GRAPHIC DOCUMENTATION AND PLANIMETRY
PROJECT BEFORE AND DURING THE CONSTRUCTION PROCESS
Do you want such a space?
Responsible: BTTESTUDIO ARQUITECTURA
Purpose: To respond to your request for information or question. Send you commercial information about our products if you authorize it.
Legitimation: consent of the interested party.
Recipients: No data will be transferred to third parties, unless legally obliged to do so.
Rights: You have the right to access, rectify and delete data, as well as other rights, as explained in the Privacy Policy.
















