
LA CASA DELS PAVESOS
Este proyecto supone la transformación integral de un antiguo almacén en planta baja en una vivienda luminosa, funcional y con una fuerte identidad material. Situada en Calle Bany dels Pavesos, en pleno centro histórico de Valencia, la intervención busca poner en valor la arquitectura original del inmueble, reinterpretándola desde una perspectiva contemporánea y confortable.
El punto de partida fue liberar los paramentos existentes, revelando los muros de ladrillo manual que permanecían ocultos tras capas de intervenciones previas. Esta textura histórica se convirtió en el hilo conductor del proyecto, aportando carácter y autenticidad a todas las estancias.
La decisión de mantenerlos vistos, combinados con carpinterías en madera natural y una paleta neutra, genera un ambiente cálido que respira historia y modernidad al mismo tiempo.
La zona de día se concibe como un único espacio fluido donde conviven salón, comedor y cocina. La distribución en “L” permite integrar un volumen de cocina minimalista, con mobiliario inferior lacado blanco y armarios superiores en madera con vetas marcadas.
La encimera de acabado pétreo y la iluminación técnica en carril refuerzan una estética limpia y funcional, acompañada por la calidez del suelo vinílico que aporta continuidad visual.
La recuperación de los techos abovedados con vigas de madera se convierte en el gesto espacial más potente del proyecto, aportando verticalidad y una atmósfera casi artesanal, típica de las plantas bajas históricas del centro de Valencia.
El dormitorio sigue la misma línea natural y suave, con textiles en tonos arena y mobiliario en madera maciza. La luz tamizada a través de grandes cortinas crea un ambiente íntimo y sereno, capaz de aislarse del ritmo urbano del exterior.
El baño combina porcelánicos de gran formato en tonos piedra, iluminación indirecta perimetral y grifería negra para aportar contraste.
El mueble de lavabo se resuelve con un volumen curvo en madera, introduciendo un punto orgánico que suaviza la geometría del conjunto. La ducha, amplia y completamente integrada, remata la atmósfera sofisticada del espacio.
Pequeñas zonas de apoyo —como el tocador en madera o la barra auxiliar con taburetes verdes— muestran el detalle y la personalización del proyecto, siempre desde una lógica funcional y cálida.
BTTEstudio firma este proyecto como un ejercicio de recuperación arquitectónica, creando una vivienda contemporánea a partir de un espacio residual, respetando la memoria del inmueble y adaptándolo a las necesidades actuales.
El resultado es una vivienda acogedora, luminosa y con carácter, perfectamente integrada en uno de los enclaves con más historia de Valencia.
PROYECTO TERMINADO
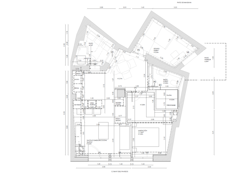
DOCUMENTACIÓN GRÁFICA Y PLANIMETRÍA
PROYECTO ANTES Y PROCESO DE EJECUCIÓN DE OBRA
¿Quieres un espacio así?
Responsable: BTTESTUDIO ARQUITECTURA
Finalidad: responder a su solicitud de información o pregunta. Enviarle información comercial sobre nuestros productos si lo autoriza.
Legitimación: consentimiento del interesado.
Destinatarios: No se cederán datos a terceros, salvo obligación legal.
Derechos: tiene derecho a acceder, rectificar y suprimir los datos, así como otros derechos, como se explica en la Política de Privacidad.
























